電話:0577-66996885
傳真:0577-66995778
手機:13353386068
Q Q:2219968630
網址:www.qzsmhotel.cn
地址:浙江省永嘉縣甌北鎮三橋工業區
產品簡介:
lHF型氟塑料增強合金化工離心泵系永嘉縣海坦泵業有限公司技術人員按IH不銹鋼化工泵圖樣泵體、泵蓋接觸液體的部分采用氟塑料增強合金襯里壓制,葉輪、軸套、葉輪螺母等過流部件均采用氟塑料增強合金壓制,其性能、連接安裝尺寸與lH型泵保持不變。
IHF化工泵為單級單吸懸臂式離心泵。其標記、額定性能點和尺寸等效采用國際標準IS02858-1975(E)、是取代F型耐腐蝕離心泵的節能,更新換代產品。能滿足化工流程中輸送有腐蝕性粘度類似于水的液體。
產品用途:
IHF型泵為單級單吸式氟塑料合金化工離心泵,是按國標設計并結合非金屬泵的加工工藝設計生產的。該泵具有耐腐、耐磨、耐高溫、不老化、機械強度高、無毒素分解、使用溫度寬,輸送介質溫度為-85C~200。C等優點。該泵廣泛適用于化工、制藥、石油、冶金、電力、電鍍、酸洗、農藥、造紙等行業中液體輸送、廢水處理和加酸等工藝流程。本泵可輸送任何濃度的硫酸、鹽酸、硝酸、醋酸、氫氟酸、王水、強鹼、強氧化劑、有機溶劑等強腐蝕性介質的使用,是目前進的耐腐蝕裝備之一。
技術參數:
流量:6.3~400m3/h;揚程:5~132m;轉速:2900、1450r/min;功率:0.55~110KW;進口直徑:50~200mm;工作壓力:1.6Mpa。
產品特點:
IHF型襯氟塑料離心泵的泵體采用金屬外殼內襯聚全氟乙丙烯(F46)、葉輪和泵蓋均采用金屬嵌件外包氟塑料整體燒結壓制成型,軸封采用外裝式波紋管機械密封,靜環選用99.9%氧化鋁陶瓷或碳化硅,動環采用四氟填充材料或碳化硅。其特點是該泵結構先進合理,耐腐蝕強,密封性能嚴密可靠,工作穩定,噪聲低,使用壽命長。
型號意義:
IHF型襯氟塑料離心泵產品:
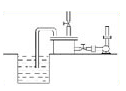
安裝示意圖:
|
特點說明:泵安裝在儲槽的底部,儲槽內介質處于正壓狀態,泵進口處閥門打開時,儲槽的液體能自流到泵腔中,這是IHF型離心泵理想的安裝方式。
|
特點說明:泵安裝在儲槽的底部,密閉的儲槽處于負壓狀態.這種狀態選泵,必須弄清儲槽中負壓的確切數據,再和我公司聯系,方可定。
|
|
特點說明:泵安裝在儲槽的上部,在進口管道靠近泵進口處安裝一個幫助泵自吸的虹吸桶,啟動泵之前需將虹吸桶中灌滿液體。虹吸桶的制作可根據介質性的的不同選用相適應的材料和制造工藝,虹吸桶的制作要求就是密封性要好,絕不能漏水漏氣,具體請咨詢綠環技術員。
|
特點說明:泵安裝在儲槽的上部,進口管道底部需要安裝底閥,每次啟動泵之前,都須檢查泵腔內是否有滿的液體,如沒有,則須將泵腔內灌滿液體,切不可開空車,一般選擇這種安裝條件的用戶都需要配套一只與泵的進口口徑一樣大小的耐酸底閥(我公司可提供該類型底閥)。
|
故障原因及排除方法:
|
故障現象 |
原因分析 |
排除方法 |
|
泵不出液體 |
1.電機轉向不對 |
1.調整轉向 |
|
泵不吸液體 |
1.底閥沒有打開或堵塞 |
1.校正或更換底閥 |
|
泵流量不足 |
1.葉輪損壞 |
1.更換葉輪 |
|
泵揚程不足 |
1.葉輪損壞 |
1.更換葉輪 |
|
噪音或振動 |
1.泵軸與電機軸不同心 |
1.校正泵與電機同軸度 |
|
軸承溫升過高 |
1.軸承損壞 |
1.更換 |
|
泵泄漏 |
1.機械密封件損壞 |
1.更換 |
安裝注意事項:
1、泵的安裝是否合理,對泵的正常運行與使用壽命有極其重要的影響,故安裝和校正必須仔細進行。
2、對照安裝尺寸預埋好底腳螺栓,做好混凝土基礎工作。
3、待基礎水泥凝固后,將泵安裝基礎上,應用水平儀檢查泵和電機軸的水平情況,如不水平,應用墊鐵調正直至水平,調妥后擰緊底腳螺母;
4、檢查泵的轉動部件是否有卡住擦碰現象,應嚴格檢查泵軸與電機的同軸度,可用薄片調整使其同心,用手轉動聯軸器,轉動輕松均勻無擦碰現象則為正常。
5、泵的吸入和吐出管路應有各自的支架,不允許管路的重量直接由泵來承受,以免把泵壓壞。
6、泵的安裝位置高于液面(在泵的吸程允許范圍內)時,應在吸入管路端部安裝上底閥,并在排出管路上設置灌液螺孔或閥門,供泵起動前灌液之用;泵的安裝位置低于液面時,應在吸入管路上按裝控制閥門和過濾裝置,以防止雜物吸入泵內,過濾面積應大于管路面積的3-4倍。
7、揚程高的泵在出口流量控制閥門的外端管路上還應安裝逆止閥,以防止突然停機時的水錘破壞。
8、必須保證泵的安裝高度符合泵的汽蝕余量,并考慮管路損失及介質溫度。
運行與保養:
1、泵的起動、運轉與停止1. 泵起動前應將泵內灌滿加足輸送的液體,嚴禁無液起動。
2、關閉出口閥門,接通電源后馬上檢查泵的轉向必須按泵的轉向箭頭一致,嚴禁逆向運轉。
3、泵起動后達到正常轉速時,再逐漸打開出口閥門,并調節到所需要的工況投入運行。在吐出管路上的閥門關閉情況下,泵連續工作的時間不能超過3分鐘。
4、停機時應先將出口的閥門關閉,然后再切斷電源。
維修與保養
1、定期檢查泵和電機,更換易損零件。
2、經常注意對軸承箱加注優質鈣基潤滑脂,以保下軸承良好的潤滑狀態。
3、長期停機不使用時,除將泵內腐蝕性液體放凈外,更應注意各部件及泵內流道的清洗干凈,并切斷電源。
4、泵嚴禁空載運轉。
5、介質中如含有固體顆粒時,應在泵入口處須加過濾器。
安裝尺寸:
|
產品型號 |
電機型號/功率 |
外形及安裝尺寸 |
||||||||||
|
(KW) |
L |
B |
S |
P |
A |
W |
T |
H |
h |
f |
4-φd |
|
|
IHF32-25-125 |
Y802-4/0.75 |
780 |
730 |
470 |
120 |
60 |
320 |
270 |
350 |
220 |
80 |
4-φ19 |
|
Y802-2/1.1 |
780 |
730 |
470 |
120 |
60 |
320 |
270 |
350 |
220 |
80 |
4-φ19 |
|
|
Y90S-2/1.5 |
790 |
730 |
470 |
120 |
60 |
320 |
270 |
350 |
220 |
80 |
4-φ19 |
|
|
IHF32-25-160 |
Y802-4/0.75 |
780 |
730 |
470 |
120 |
60 |
320 |
270 |
350 |
220 |
80 |
4-φ19 |
|
Y90S-2/1.5 |
790 |
740 |
530 |
130 |
60 |
350 |
300 |
370 |
230 |
80 |
4-φ19 |
|
|
Y90L-2/2.2 |
810 |
740 |
530 |
130 |
60 |
350 |
300 |
370 |
230 |
80 |
4-φ19 |
|
|
IHF40-32-125 |
Y802-4/0.75 |
780 |
730 |
470 |
120 |
60 |
320 |
270 |
350 |
220 |
80 |
4-φ19 |
|
Y90S-2/1.5 |
790 |
730 |
470 |
120 |
60 |
320 |
270 |
350 |
220 |
80 |
4-φ19 |
|
|
Y90L-2/2.2 |
820 |
730 |
470 |
120 |
60 |
320 |
270 |
350 |
220 |
80 |
4-φ19 |
|
|
IHF40-32-160 |
Y802-4/0.75 |
780 |
740 |
530 |
130 |
60 |
320 |
270 |
350 |
230 |
80 |
4-φ19 |
|
Y90S-2/1.5 |
800 |
740 |
530 |
130 |
60 |
350 |
300 |
370 |
230 |
80 |
4-φ19 |
|
|
Y90L-2/2.2 |
810 |
740 |
530 |
130 |
60 |
350 |
300 |
370 |
230 |
80 |
4-φ19 |
|
|
IHF50-32-125 |
Y802-4/0.75 |
800 |
740 |
530 |
130 |
60 |
350 |
300 |
370 |
230 |
80 |
4-φ19 |
|
Y90S-2/1.5 |
810 |
750 |
530 |
130 |
60 |
350 |
300 |
360 |
220 |
80 |
4-φ19 |
|
|
Y90L-2/2.2 |
820 |
750 |
530 |
130 |
60 |
350 |
300 |
360 |
220 |
80 |
4-φ19 |
|
|
IHF50-32-160 |
Y802-4/0.75 |
820 |
820 |
560 |
130 |
60 |
350 |
300 |
370 |
235 |
80 |
4-φ19 |
|
Y100L-2/3 |
900 |
800 |
455 |
175 |
60 |
390 |
340 |
480 |
220 |
80 |
4-φ19 |
|
|
Y112M-2/4 |
900 |
820 |
560 |
130 |
60 |
350 |
300 |
370 |
235 |
80 |
4-φ19 |
|
|
IHF50-32-200 |
Y90L-4/1.5 |
850 |
800 |
560 |
130 |
60 |
350 |
300 |
370 |
235 |
80 |
4-φ19 |
|
Y132S1-2/5.5 |
970 |
850 |
560 |
140 |
60 |
390 |
340 |
380 |
260 |
80 |
4-φ19 |
|
|
Y132S2-2/7.5 |
980 |
850 |
560 |
140 |
60 |
390 |
340 |
380 |
260 |
80 |
4-φ19 |
|
|
IHF50-32-250 |
Y100L-4/2.2 |
1030 |
920 |
560 |
200 |
80 |
480 |
430 |
520 |
290 |
100 |
4-φ24 |
|
Y132S2-2/7.5 |
1180 |
1170 |
775 |
200 |
80 |
490 |
440 |
520 |
290 |
100 |
4-φ24 |
|
|
Y160M1-2/11 |
1280 |
1170 |
775 |
200 |
80 |
490 |
440 |
520 |
290 |
100 |
4-φ24 |
|
|
IHF65-50-125 |
Y802-4/0.75 |
800 |
750 |
530 |
130 |
60 |
350 |
300 |
360 |
220 |
80 |
4-φ19 |
|
Y90L-2/2.2 |
850 |
820 |
560 |
130 |
60 |
350 |
300 |
370 |
235 |
80 |
4-φ19 |
|
|
Y100L-2/3 |
870 |
770 |
550 |
110 |
60 |
320 |
270 |
360 |
220 |
80 |
4-φ19 |
|
|
IHF65-50-160 |
Y90S-4/1.1 |
870 |
820 |
560 |
120 |
60 |
390 |
340 |
400 |
235 |
80 |
4-φ19 |
|
Y112M-2/4 |
900 |
820 |
560 |
120 |
60 |
350 |
300 |
370 |
235 |
80 |
4-φ19 |
|
|
Y132S1-2/5.5 |
960 |
840 |
600 |
120 |
60 |
390 |
340 |
400 |
235 |
80 |
4-φ19 |
|
|
IHF65-40-200 |
Y90L-4/1.5 |
990 |
880 |
560 |
140 |
60 |
390 |
340 |
380 |
260 |
100 |
4-φ19 |
|
Y132S2-2/7.5 |
1120 |
850 |
560 |
140 |
60 |
390 |
340 |
380 |
260 |
100 |
4-φ19 |
|
|
Y160M1-2/11 |
1140 |
980 |
660 |
150 |
60 |
460 |
400 |
440 |
260 |
100 |
4-φ19 |
|
|
IHF65-40-250 |
Y100L2-4/3 |
1030 |
920 |
560 |
200 |
80 |
480 |
430 |
520 |
290 |
100 |
4-φ19 |
|
Y160M2-2/15 |
1180 |
1170 |
775 |
200 |
80 |
490 |
430 |
520 |
290 |
100 |
4-φ19 |
|
|
Y160L-2/18.5 |
1330 |
1170 |
775 |
200 |
80 |
490 |
430 |
520 |
290 |
100 |
4-φ24 |
|
|
IHF80-65-125 |
Y90S-4/1.1 |
820 |
800 |
560 |
130 |
60 |
350 |
300 |
370 |
235 |
100 |
4-φ24 |
|
Y112M-2/4 |
900 |
820 |
560 |
130 |
60 |
350 |
300 |
370 |
235 |
100 |
4-φ24 |
|
|
Y132S1-2/5.5 |
980 |
840 |
600 |
120 |
60 |
390 |
340 |
400 |
235 |
100 |
4-φ24 |
|
|
IHF80-65-160 |
Y90L-4/1.5 |
840 |
800 |
560 |
130 |
60 |
390 |
340 |
380 |
260 |
100 |
4-φ24 |
|
Y132S2-2/7.5 |
1040 |
850 |
560 |
140 |
60 |
390 |
340 |
380 |
260 |
100 |
4-φ24 |
|
|
Y160M1-2/11 |
1140 |
980 |
660 |
150 |
60 |
460 |
400 |
440 |
260 |
100 |
4-φ24 |
|
|
IHF80-50-200 |
Y100L2-4/3 |
940 |
850 |
560 |
140 |
60 |
390 |
340 |
380 |
260 |
100 |
4-φ24 |
|
Y160M1-2/11 |
1000 |
960 |
660 |
150 |
60 |
460 |
400 |
460 |
270 |
100 |
4-φ24 |
|
|
Y160M2-2/15 |
1020 |
960 |
660 |
150 |
60 |
460 |
400 |
460 |
270 |
100 |
4-φ24 |
|
|
IHF80-50-250 |
Y112M-4/4 |
1050 |
920 |
560 |
200 |
80 |
480 |
430 |
510 |
285 |
100 |
4-φ24 |
|
Y180M-2/22 |
1330 |
1170 |
775 |
200 |
80 |
490 |
430 |
510 |
285 |
100 |
4-φ24 |
|
|
Y200L1-2/30 |
1430 |
1270 |
850 |
220 |
80 |
550 |
490 |
510 |
285 |
100 |
4-φ24 |
|
|
IHF100-80-125 |
Y90M-L-4/1.5 |
960 |
800 |
560 |
130 |
80 |
390 |
340 |
380 |
260 |
100 |
4-φ24 |
|
Y132S2-2/7.5 |
1040 |
850 |
560 |
140 |
80 |
390 |
340 |
380 |
260 |
100 |
4-φ24 |
|
|
Y160M1-2/11 |
1140 |
980 |
660 |
150 |
80 |
460 |
400 |
440 |
270 |
100 |
4-φ24 |
|
|
IHF100-80-160 |
Y100L-4/2.2 |
940 |
850 |
560 |
140 |
80 |
390 |
340 |
460 |
270 |
100 |
4-φ24 |
|
Y160M1-2/11 |
1120 |
1090 |
760 |
165 |
80 |
460 |
400 |
480 |
280 |
100 |
4-φ24 |
|
|
Y160M2-2/15 |
1140 |
1090 |
760 |
165 |
80 |
460 |
400 |
480 |
280 |
100 |
4-φ24 |
|
|
IHF100-65-200 |
Y112M-4/4 |
1050 |
920 |
560 |
200 |
80 |
480 |
430 |
525 |
300 |
100 |
4-φ28 |
|
Y180M-2/22 |
1280 |
1220 |
880 |
190 |
80 |
570 |
500 |
525 |
300 |
100 |
4-φ28 |
|
|
Y200L1-2/30 |
1380 |
1220 |
880 |
190 |
80 |
570 |
500 |
525 |
300 |
100 |
4-φ28 |
|
|
IHF100-65-250 |
Y132S-4/5.5 |
1140 |
950 |
560 |
160 |
80 |
610 |
510 |
550 |
300 |
100 |
4-φ28 |
|
Y200L2-2/37 |
1380 |
1220 |
880 |
200 |
80 |
630 |
525 |
550 |
300 |
100 |
4-φ28 |
|
|
Y225L-2/45 |
1780 |
1450 |
1280 |
200 |
80 |
630 |
560 |
550 |
300 |
100 |
4-φ28 |
|
性能曲線圖:
性能參數:
|
型 號 |
轉速 r/min |
流量Q |
揚程 m |
效率 % |
功率 P |
必耐汽 蝕余量 (m) |
||
|
m3/h |
L/s |
軸功率 |
電機功率 |
|||||
|
(KW) |
||||||||
|
IHF32-25-125 |
2900 |
3.5 |
0.97 |
21 |
40 |
0.5 |
1.5 |
2.3 |
|
5 |
1.39 |
20 |
44 |
0.62 |
||||
|
6.5 |
1.8 |
18 |
42 |
0.76 |
||||
|
1450 |
1.75 |
0.49 |
5.25 |
37 |
0.068 |
0.75 |
2.3 |
|
|
2.5 |
0.69 |
5 |
40 |
0.085 |
||||
|
3.25 |
0.9 |
4.5 |
38 |
0.105 |
||||
|
IHF32-25-125A |
2900 |
3.1 |
0.06 |
17.6 |
38 |
0.7 |
1.1 |
2.3 |
|
4.5 |
1.25 |
16 |
41 |
0.48 |
||||
|
5.8 |
1.61 |
14.4 |
40 |
0.57 |
||||
|
IHF32-25-160 |
2900 |
3.5 |
0.97 |
33 |
34 |
0.93 |
2.2 |
2.3 |
|
5 |
1.39 |
32 |
40 |
1.1 |
||||
|
6.5 |
1.8 |
30 |
42 |
1.26 |
||||
|
1450 |
1.75 |
0.49 |
8.25 |
30 |
0.131 |
0.75 |
2.3 |
|
|
2.5 |
0.69 |
8 |
38 |
0.143 |
||||
|
3.25 |
0.9 |
7.5 |
40 |
0.166 |
||||
|
IHF32-25-160A |
2900 |
3.1 |
0.86 |
29 |
30 |
0.81 |
1.5 |
2.3 |
|
4.5 |
1.25 |
28 |
35 |
0.97 |
||||
|
5.8 |
1.61 |
26 |
36 |
1.14 |
||||
|
IHF40-32-125 |
2900 |
4.4 |
1.22 |
21 |
40 |
0.63 |
2.2 |
2.5 |
|
6.5 |
1.8 |
20 |
45 |
0.79 |
||||
|
8.3 |
2.31 |
18 |
43 |
0.95 |
||||
|
1450 |
2.2 |
0.6 |
5.25 |
37 |
0.085 |
0.75 |
2.5 |
|
|
3.25 |
0.9 |
5 |
41 |
0.108 |
||||
|
4.15 |
1.15 |
4.5 |
40 |
0.127 |
||||
|
IHF40-32-125A |
2900 |
3.9 |
1.08 |
17.6 |
38 |
0.49 |
1.5 |
2.5 |
|
5.6 |
1.56 |
16 |
42 |
0.58 |
||||
|
7.4 |
2.06 |
14.4 |
40 |
0.72 |
||||
|
IHF40-32-160 |
2900 |
4.4 |
1.22 |
33 |
34 |
1.16 |
2.2 |
2.5 |
|
6.5 |
1.8 |
32 |
40 |
1.42 |
||||
|
8.3 |
2.31 |
30 |
39 |
1.71 |
||||
|
1450 |
2.2 |
0.6 |
8.25 |
33 |
0.14 |
0.75 |
2.5 |
|
|
2.5 |
0.9 |
8 |
36 |
0.15 |
||||
|
3.25 |
1.15 |
7.5 |
37 |
0.18 |
||||
|
IHF40-32-160A |
2900 |
3.9 |
1.08 |
29 |
32 |
0.96 |
1.5 |
2.5 |
|
5.6 |
1.56 |
28 |
38 |
1.23 |
||||
|
7.4 |
2.06 |
26 |
37 |
1.41 |
||||
|
IHF50-32-125 |
2900 |
8.8 |
1.08 |
21.5 |
45 |
1.15 |
2.2 |
3.0 |
|
12.5 |
1.56 |
20 |
54 |
1.26 |
||||
|
16.3 |
2.06 |
17.5 |
53 |
1.47 |
||||
|
1450 |
4.4 |
1.2 |
5.37 |
37 |
0.17 |
0.75 |
3.0 |
|
|
6.25 |
1.74 |
5 |
46 |
0.18 |
||||
|
8.15 |
2.26 |
4.37 |
45 |
0.22 |
||||
|
IHF50-32-125A |
2900 |
8 |
2.22 |
17 |
42 |
0.88 |
1.5 |
3.0 |
|
11 |
3.05 |
16 |
52 |
0.92 |
||||
|
14.5 |
4.03 |
14 |
51 |
1.08 |
||||
|
IHF50-32-160 |
2900 |
8.8 |
2.44 |
33 |
41 |
1.93 |
4 |
3.0 |
|
12.5 |
3.47 |
32 |
48 |
2.27 |
||||
|
16.3 |
4.53 |
30 |
47 |
2.84 |
||||
|
1450 |
4.4 |
1.2 |
8.25 |
31 |
0.31 |
0.75 |
3.0 |
|
|
6.25 |
1.74 |
8 |
41 |
0.33 |
||||
|
8.15 |
2.26 |
7.5 |
42 |
0.39 |
||||
|
IHF50-32-160A |
2900 |
8.2 |
2.28 |
29 |
39 |
1.16 |
3 |
3.0 |
|
11.7 |
3.25 |
28 |
47 |
1.88 |
||||
|
15.2 |
4.22 |
26 |
46 |
2.34 |
||||
|
IHF50-32-200 |
2900 |
8.8 |
2.44 |
52 |
34 |
3.7 |
7.5 |
3.0 |
|
12.5 |
3.47 |
50 |
42 |
4.1 |
||||
|
16.3 |
4.53 |
48 |
41 |
5.2 |
||||
|
1450 |
4.4 |
1.2 |
13 |
25 |
0.62 |
1.5 |
3.0 |
|
|
6.25 |
1.74 |
12.5 |
33 |
0.65 |
||||
|
8.15 |
2.26 |
12 |
36 |
0.74 |
||||
|
IHF50-32-200A |
2900 |
8.2 |
2.28 |
45 |
31 |
3.24 |
5.5 |
3.0 |
|
11.7 |
11.7 |
44 |
40 |
3.5 |
||||
|
15.2 |
15.2 |
42 |
39 |
4.45 |
||||
|
IHF50-32-250 |
2900 |
8.8 |
8.8 |
82 |
27 |
7.3 |
11 |
3.0 |
|
12.5 |
12.5 |
80 |
35 |
7.8 |
||||
|
16.3 |
16.3 |
76 |
34 |
10 |
||||
|
1450 |
4.4 |
4.4 |
20.5 |
20 |
1.22 |
2.2 |
3.0 |
|
|
6.25 |
6.25 |
20 |
27 |
1.26 |
||||
|
8.15 |
8.15 |
19 |
30 |
1.4 |
||||
|
IHF50-32-250A |
2900 |
8.2 |
8.2 |
71 |
25 |
4.53 |
7.5 |
3.0 |
|
11.7 |
11.7 |
70 |
34 |
6.56 |
||||
|
15.2 |
15.2 |
68 |
33 |
8.52 |
||||
|
IHF65-50-125 |
2900 |
17.5 |
17.5 |
21.5 |
56 |
1.83 |
3 |
3.5 |
|
25 |
25 |
20 |
64 |
2.13 |
||||
|
32 |
32 |
17.5 |
63 |
2.42 |
||||
|
1450 |
8.72 |
8.75 |
5.37 |
45 |
0.28 |
0.75 |
3.5 |
|
|
12.5 |
12.5 |
5 |
57 |
0.3 |
||||
|
16 |
16 |
4.37 |
58 |
0.33 |
||||
|
IHF65-50-125A |
2900 |
15.6 |
15.6 |
17 |
53 |
1.36 |
2.2 |
3.5 |
|
22.3 |
22.3 |
16 |
62 |
1.57 |
||||
|
29 |
29 |
14 |
61 |
1.79 |
||||
|
IHF65-50-160 |
2900 |
17.5 |
17.5 |
33 |
50 |
3.15 |
5.5 |
3.5 |
|
25 |
25 |
32 |
59 |
3.69 |
||||
|
32 |
32 |
27.5 |
57 |
4.2 |
||||
|
1450 |
8.75 |
8.75 |
8.25 |
40 |
0.49 |
1.1 |
3.5 |
|
|
12.5 |
12.5 |
8 |
53 |
0.51 |
||||
|
16 |
16 |
6.87 |
51 |
0.59 |
||||
|
IHF65-50-160A |
2900 |
16.4 |
16.4 |
29 |
48 |
2.7 |
4 |
3.5 |
|
23.3 |
23.3 |
28 |
58 |
3.1 |
||||
|
30.4 |
30.4 |
24 |
56 |
3.54 |
||||
|
IHF65-40-200 |
2900 |
17.5 |
17.5 |
52 |
45 |
5.5 |
11 |
3.5 |
|
25 |
25 |
50 |
54 |
6.3 |
||||
|
32 |
32 |
45.5 |
54 |
7.35 |
||||
|
1450 |
8.75 |
8.75 |
13 |
36 |
0.86 |
1.5 |
3.5 |
|
|
12.5 |
12.5 |
12.5 |
46 |
0.93 |
||||
|
16 |
, , , 16 |
11.4 |
47 |
1.05 |
||||
|
IHF65-40-200A |
2900 |
16.4 |
16.4 |
46 |
43 |
4.3 |
7.5 |
3.5 |
|
23.3 |
23.3 |
44 |
53 |
5 |
||||
|
30.4 |
30.4 |
40 |
52 |
5.2 |
||||
|
IHF65-40-250 |
2900 |
17.5 |
17.5 |
82 |
39 |
10.1 |
18.5 |
3.5 |
|
25 |
25 |
80 |
50 |
10.9 |
||||
|
32 |
32 |
76 |
52 |
12.74 |
||||
|
1450 |
8.75 |
8.75 |
20.5 |
32 |
1.52 |
3 |
3.5 |
|
|
12.5 |
12.5 |
20 |
42 |
1.62 |
||||
|
16 |
16 |
19 |
44 |
1.88 |
||||
|
IHF65-40-250A |
2900 |
16.4 |
16.4 |
71 |
36 |
8.8 |
15 |
3.5 |
|
23.3 |
23.3 |
70 |
48 |
9.3 |
||||
|
30.4 |
30.4 |
68 |
50 |
11.25 |
||||
|
IHF80-65-125 |
2900 |
35 |
35 |
21.5 |
64 |
3.2 |
5.5 |
4.0 |
|
50 |
50 |
20 |
69 |
3.95 |
||||
|
65 |
65 |
17 |
67 |
4.5 |
||||
|
1450 |
17.5 |
17.5 |
5.37 |
54 |
0.47 |
1.1 |
4.0 |
|
|
25 |
25 |
5 |
64 |
0.53 |
||||
|
32.5 |
32.5 |
4.25 |
62 |
0.61 |
||||
|
IHF80-65-125A |
2900 |
31 |
31 |
17 |
62 |
2.3 |
4 |
4.0 |
|
45 |
45 |
16 |
68 |
2.88 |
||||
|
58 |
58 |
14 |
67 |
3.3 |
||||
|
IHF80-65-160 |
2900 |
35 |
35 |
33 |
60 |
5.24 |
11 |
4.0 |
|
50 |
50 |
32 |
68 |
6.41 |
||||
|
65 |
65 |
27.5 |
67 |
7.27 |
||||
|
IHF80-65-160 |
1450 |
17.5 |
4.86 |
8.25 |
50 |
0.78 |
1.5 |
4.0 |
|
25 |
6.9 |
8 |
62 |
0.88 |
||||
|
32.5 |
9 |
6.88 |
61 |
1 |
||||
|
IHF80-65-160A |
2900 |
31 |
8.6 |
29 |
58 |
4.1 |
7.5 |
4.0 |
|
45 |
12.5 |
28 |
67 |
5.12 |
||||
|
58 |
16.1 |
24 |
66 |
5.34 |
||||
|
IHF80-50-200 |
2900 |
35 |
9.72 |
52 |
52 |
9.53 |
15 |
4.0 |
|
50 |
13.9 |
50 |
64 |
10.64 |
||||
|
65 |
18.1 |
45.5 |
65 |
12.39 |
||||
|
1450 |
17.5 |
4.86 |
13 |
51 |
1.21 |
3 |
4.0 |
|
|
25 |
6.9 |
12.5 |
59 |
1.44 |
||||
|
32.5 |
9 |
11.38 |
58 |
1.74 |
||||
|
IHF80-50-200A |
2900 |
31 |
8.6 |
46 |
50 |
7.35 |
11 |
4.0 |
|
45 |
12.5 |
44 |
63 |
8.56 |
||||
|
58 |
16.1 |
40 |
62 |
10 |
||||
|
IHF80-50-250 |
2900 |
35 |
9.72 |
82 |
40 |
19.4 |
30 |
4.0 |
|
50 |
13.9 |
80 |
50 |
21.8 |
||||
|
65 |
18.1 |
72 |
51 |
25 |
||||
|
1450 |
17.5 |
4.86 |
20.5 |
40 |
2.4 |
4 |
4.0 |
|
|
25 |
6.9 |
20 |
50 |
2.7 |
||||
|
32.5 |
9 |
18 |
51 |
3.12 |
||||
|
IHF80-50-250A |
2900 |
31 |
8.6 |
71.5 |
39 |
15.4 |
22 |
4.0 |
|
45 |
12.5 |
70 |
50 |
17.6 |
||||
|
58 |
16.1 |
63 |
51 |
19.9 |
||||
|
IHF100-80-125 |
2900 |
70 |
19.4 |
23 |
70 |
6.26 |
11 |
5.0 |
|
100 |
27.8 |
20 |
75 |
7.26 |
||||
|
130 |
36.1 |
14 |
65 |
7.63 |
||||
|
1450 |
35 |
9.7 |
5.75 |
65 |
0.85 |
1.5 |
4.5 |
|
|
50 |
13.9 |
5 |
70 |
0.97 |
||||
|
65 |
18 |
3.5 |
64 |
0.98 |
||||
|
IHF100-80-125A |
2900 |
62.6 |
17.4 |
18 |
68 |
4.5 |
7.5 |
5.0 |
|
89 |
24.7 |
16 |
73 |
5.3 |
||||
|
116 |
32.2 |
11 |
65 |
5.74 |
||||
|
IHF100-80-160 |
2900 |
70 |
19.4 |
34 |
68 |
9.53 |
15 |
5.0 |
|
100 |
27.8 |
32 |
74 |
11.78 |
||||
|
130 |
36.1 |
24 |
65 |
13.03 |
||||
|
1450 |
35 |
9.7 |
8.5 |
60 |
1.35 |
2.2 |
4.5 |
|
|
50 |
13.9 |
8 |
68 |
1.6 |
||||
|
65 |
18 |
6.5 |
67 |
1.69 |
||||
|
IHF100-80-160A |
2900 |
65.4 |
18.2 |
32 |
66 |
8.6 |
11 |
5.0 |
|
93.5 |
26 |
28 |
73 |
9.3 |
||||
|
121 |
33.6 |
21 |
65 |
10.6 |
||||
|
IHF100-65-200 |
2900 |
70 |
19.4 |
52 |
64 |
15.5 |
30 |
5.0 |
|
100 |
27.8 |
50 |
72 |
18.91 |
||||
|
130 |
36.1 |
42 |
71 |
20.94 |
||||
|
1450 |
35 |
9.7 |
13 |
60 |
2.06 |
4 |
4.5 |
|
|
50 |
13.9 |
12.5 |
68 |
2.5 |
||||
|
65 |
18 |
10.5 |
63 |
2.95 |
||||
|
IHF100-65-200A |
2900 |
65.4 |
18.2 |
46 |
63 |
13 |
22 |
5.0 |
|
93.5 |
26 |
44 |
71 |
15.02 |
||||
|
121 |
33.6 |
37 |
70 |
17.4 |
||||
|
IHF100-65-250 |
2900 |
70 |
19.4 |
87 |
62 |
26.6 |
45 |
4.0 |
|
100 |
27.8 |
80 |
69 |
31.6 |
||||
|
130 |
36.1 |
68 |
68 |
35 |
||||
|
1450 |
30 |
8.33 |
21.2 |
58 |
3 |
5.5 |
4.5 |
|
|
50 |
13.9 |
20 |
63 |
4.3 |
||||
|
60 |
16.7 |
18.5 |
62 |
4.72 |
||||
|
IHF100-65-250A |
2900 |
65.4 |
16.2 |
76.5 |
60 |
20.25 |
37 |
4.5 |
|
93.5 |
26 |
70 |
68 |
26.2 |
||||
|
121 |
33.6 |
59 |
67 |
28 |
||||
性能曲線圖:

