電話:0577-66996885
傳真:0577-66995778
手機:13353386068
Q Q:2219968630
網址:www.qzsmhotel.cn
地址:浙江省永嘉縣甌北鎮三橋工業區
JYWQ系列不銹鋼自動攪勻潛水排污泵產品簡介:
JYWQ、JPWQ系列自動攪勻潛水排污泵是在WQ型號潛水排污泵的基礎上采用自動攪拌裝置,該裝置隨電機軸旋轉,產生極強的攪拌力,將污水池內的沉積物攪拌成懸浮物,吸入泵內排出,提高了泵的防堵、排污能力,一次性完成了排水、清污、除淤,節約了運行成本,是具有明顯的先進性和實用性的環保產品。該產品成功適用于于化工、石油、制藥、采礦、造紙、電廠及城市污水處理、市政工程、公共設施排污等輸送帶顆粒、沉淀物的污水污物,并獲得了用戶的一直好評!注:JYWQ為普通型;JPWQ為帶不銹鋼外套內循環冷卻系統自動攪勻排污泵。
JYWQ系列不銹鋼自動攪勻潛水排污泵使用條件:
1、介質溫度不超過60℃,介質重度為1~1.3kg/dm3,PH值在4~10范圍內。
2、1Cr18Ni9ti不銹鋼材質可適用各種腐蝕性介質。
注:用戶如有特殊的介質、溫度等要求,請要訂貨時注明輸送介質詳細情況,以便本公司提供更為可靠之產品。
JYWQ系列不銹鋼自動攪勻潛水排污泵產品用途:
1.工廠、商業嚴重污染廢水的排放。
2.城市污水處理廠、醫院、賓館的排水系統。
3.住宅區的污水排水站。
4.人防系統排水站、自來水廠的給水裝置。
5.市政工程、建筑工地。
6.勘探、礦山、發電廠配套附機。
7.農村沼氣池、農田灌溉、河塘清淤。
JYWQ系列不銹鋼自動攪勻潛水排污泵結構特點:
1、采用獨特的雙流道無堵塞葉輪結構,提高污水污物的過流能力和排污能力。
2、自動攪拌裝置,產生極強的攪拌力,將池內的沉淀物攪拌成懸浮物后吸入葉輪排出,達到清淤的作用。
3、隔板將底座一分為二,攪拌與進水互不影響。
4、機械密封為雙端面機械密封,長期處于油室中,保證水泵安全可靠地運行。
5、副葉輪結構的流體動力密封,既有輔助密封作用,從而保護機械密封,又平衡軸向力,延長軸承的使用壽命。
6、泵連線腔內沒有漏水檢測探頭,出現漏水時,探頭發出信號,控制系統對泵實施保護,本公司可配全自動安全保護控制柜。
7、電機定子采用B級和F級絕緣,內設熱保護器,當電機過載發熱,保護器及時作出動作,對泵和電機實施的保護。
8、油室內裝有油水探頭,當機械密封損壞后,水進入油室,探頭發出信號由控制系統對水泵實施保護。
9、JPWQ帶內循環冷卻系統,能保證水泵在水池*低水位正常工作。
型號意義:
JYWQ系列不銹鋼自動攪勻潛水排污泵性能參數:
故障原因及排除方法:
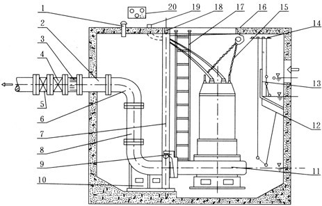
安裝示意圖:
|
1 |
通風節 |
|
|
2 |
預埋管 |
|
|
3 |
膨脹節 |
|
|
4 |
逆止閥 |
|
|
5 |
閘閥 |
|
|
6 |
彎管 |
|
|
7 |
導軌 |
|
|
8 |
出水管 |
|
|
9 |
支架 |
|
|
10 |
耦合底 |
|
|
11 |
自動攪勻排污泵 |
|
|
12 |
浮球開關 |
|
|
13 |
隔板 |
|
|
14 |
浮球固定 |
|
|
15 |
小鏈 |
|
|
16 |
掛鉤 |
|
|
17 |
人梯 |
|
|
18 |
支撐架 |
|
|
19 |
電纜出線 |
|
|
20 |
電機保護 |
|
雙導軌雙泵排水平面 |
單導軌單泵排水平面 |
|
注:JYWQ、JPWQ系列自動攪勻潛水排污泵選型時,請注明泵的型號,安裝方式,池深,泵控制保護方式,以便提供可靠的系統 |
|
JYWQ系列不銹鋼自動攪勻潛水排污泵使用注意事項:
(1)運轉前應用兆歐表檢查電機定子繞組對地的絕緣電阻,*低不得少于50兆歐。
(2)檢查電纜有無破損、折斷等現象。如有損傷須及時更換,以免漏電;電纜截面應與電流相匹配。
(3)電壓超過額定電壓的±10%時,不得啟動電泵。
(4)以保證使用安全,必須將四芯電纜中的接地線可靠接地,以防發生觸電事故。
(5)電泵潛入水中時,應垂直起吊,不允許橫放著地,更不能陷入污泥中。停止使用時應將電泵吊起清洗干凈, 置于干燥處,并注意防凍。
(6)禁止將電纜作為安裝起吊繩使用。
(7)檢查轉子運轉方向,從上向下看應為順時針方向旋轉。
(8)室外的開關或接線端應有防雨、防潮措施,濕手或赤足時禁止觸及開關,防止觸電。
(9)移動電泵時,必須切斷電源,電泵在運行時人不得接觸水源,以防漏電發生人身事故。
(10)嚴禁電機缺相運轉,如發現保險絲熔斷,應檢查原因后方可繼續使用,不得任意加粗保險絲。
(11)泵運轉時,應有專人管理,如發現有不正常現象應立即停機檢查,排除故障。(指末配全自動保護柜的情況)。
(12)電泵在規定的工作介質條件下正常運行半年后,應檢查油室密封狀況,如油室中的油呈乳狀或有水沉淀,應及時更換10~20號機械油和機械密封。對于在惡劣工作條件下使用的電泵,更應經常檢修。
(13)用戶應根據實際使用的工況選擇合適的流量揚程,以達到*佳使用效果,泵銘牌或說明書上所示參數為該*佳使用工況點,用戶可選在(0.7~1.2)倍*佳流量內使用,禁止超流量使用,否則流量過大,揚程過低容易使電機過載。
JYWQ系列不銹鋼自動攪勻潛水排污泵性能曲線圖
JYWQ系列不銹鋼自動攪勻潛水排污泵結構圖:
|
1 |
主電纜 |
8 |
底座 |
|
|
2 |
機殼 |
9 |
隔板 |
|
|
3 |
內循環套 |
10 |
控制電纜 |
|
|
4 |
油箱 |
11 |
油水控頭 |
|
|
5 |
副葉輪 |
12 |
機械密封 |
|
|
6 |
葉輪 |
13 |
攪拌件 |
|
|
7 |
泵體 |
14 |
|

